ARXIU ICARIÀ
INTRODUCCIÓ
La transformació urbanística del Poblenou durant la preparació dels Jocs Olímpics de Barcelona 1992 va ser un moment clau en la història recent de la ciutat. Aquest enclavament, conegut anteriorment com el «Manchester català» pel seu passat industrial, va passar de ser una zona degradada amb fàbriques, tallers i habitatges obrers a convertir-se en un modern barri residencial i un emblema del desenvolupament urbà. Aquest canvi no només va suposar un avenç en termes d’infraestructures i connectivitat, sinó també una reformulació de la identitat de Barcelona com a ciutat global.
El Pla Especial per a la remodelació del litoral, que va incloure la construcció de la Vila Olímpica, va eliminar bona part del teixit urbà històric del Poblenou, incloent-hi la barriada d’Icària. Es van demolir aproximadament 200 edificis, es van desmantellar vies ferroviàries i es va transformar completament l’estructura urbana de l’àrea per integrar nous espais habitacionals, turístics i recreatius. Tot i que aquest procés va contribuir a la modernització de la ciutat i a l’impuls econòmic de Barcelona, també va generar debats sobre la pèrdua del patrimoni arquitectònic, el desplaçament de comunitats locals i l’aparició de fenòmens com la gentrificació i el turisme massiu que, dècades després, continuen marcant la vida de la ciutat.
El nom “Icària” evoca la utopia ideada pel filòsof i socialista utòpic francès Étienne Cabet, qui va imaginar una societat igualitària en una illa fictícia anomenada Icària. Inspirats per aquest ideal, un grup de cabetians catalans va formar una comunitat al Poblenou durant el segle XIX, en una àrea que posteriorment va prendre el nom d’Icària. Aquest barri, que més tard es convertiria en un centre industrial, va encarnar un esperit utòpic que va persistir en la seva identitat fins a la seva demolició.
Al llarg de la seva història, la barriada d’Icària va estar marcada per fites com:
Els Jocs Olímpics: Amb l’inici dels enderrocs l’any 1987, la remodelació urbanística va esborrar pràcticament tot el teixit històric del barri d’Icària, reemplaçant-lo per la Vila Olímpica, una síntesi de progrés econòmic i aspiracions modernitzadores.
La Revolució Industrial: sent una part essencial del primer tram de ferrocarril que va circular a Espanya el 1848 i de la construcció de grans fàbriques i tallers al darrer quart del segle XIX, el seu paisatge ple de xemeneies i vies de tren, es va convertir en un referència bàsica del desenvolupament industrial i el moviment obrer de Barcelona.
La Guerra Civil: L’avinguda Icària va ser l’escenari de durs combats al mateix inici de la guerra durant el 19 de juliol de 1936 i de bombardejos aeris i navals fins a la fi del conflicte, fets que van deixar la seva empremta a la memòria colectiva del barri.
És per això que creiem que el nom d’Icària simbolitza un “no lloc”, un espai de trànsit que ha canviat amb cada època. A través de les escasses restes físiques, com es la gran xemeneia de la Fàbriques Folch, i la memòria del seu passat obrer i anarquista, Icària continua sent un punt de reflexió sobre la tensió entre progrés, memòria i identitat.





L’Arxiu Icarià: Testimoni d’una desaparició
A la fi de juliol de 1987, a través d’una autorització facilitada per l’historiador Josep Oriol Granados, llavors director del Centre d’Arqueologia de la Ciutat, Llorens va accedir al sector i els edificis de la barriada d’Icària que anaven a ser derrocats. Emprant una càmera estenopeica, la seva idea era realitzar fotografies per a un projecte fotogràfic personal. Poc després, l’arquitecte Juli Laviña, director tècnic de l’àrea d’Arquitectura i Estructura Urbana de l’empresa municipal Vila Olímpica S.A., es va interessar per aquestes fotografies. Així, en 1988, va gestionar i va formalitzar un contracte perquè Llorens realitzés la documentació fotogràfica de totes les obres d’infraestructura que aquesta empresa duria a terme fins a 1992. Aquest és l’origen del fons documental que avui denominem Arxiu Icarià.
El projecte «Arxiu Icarià» té com a finalitat preservar, organitzar i difondre una àmplia col·lecció d’imatges, documents i objectes relacionats amb aquesta transformació del barri del Poblenou. Aquest arxiu, actualment custodiat per l’associació cultural Factoria Heliogràfica, de la qual Martí Llorens és membre fundador, inclou:
FOTOGRAFIA DOCUMENTAL
La documentació fotogràfica realitzada per encàrrec de VOSA (Vila Olímpica SA) inclou tots els projectes constructius gestionats per aquesta empresa municipal des de 1988 fins a 1992; des de les demolicions i el sanejament de subsol fins a la construcció de la Ronda Litoral, la nova xarxa de col·lectors, el port esportiu, les platges i els espigons, i finalment la urbanització de carrers, els parcs i l’edificació dels habitatges. També tot el referent a la xarxa ferroviària, des de l’aixecament de les vies del ramal ferroviari de Marina, els desviaments provisionals i el soterrament del ramal de Glòries.
En aquest treball es van emprar simultàniament tres suports de format 135, cadascun pensat per a un ús diferent:
El negatiu de color. Destinat a l’arxiu general, la confecció de dossiers, exposicions, etc. Existeixen al voltant de 24.400 imatges. Arxivats en sobres amb les seves respectives fulles de contacte, numerades i datades per setmana/mes/any incloent la descripció del tema.
Les diapositives. Destinades a l’arxiu general, mitjans de comunicació impresa, conferències, audiovisuals, etc. Hi ha al voltant de 16.550 diapositives, datades, numerades i classificades per temes i subtemes.
El negatiu de blanc i negre. Destinat exclusivament a l’arxiu, es va decidir el seu ús per la major estabilitat i durabilitat que presenta aquest suport. Existeixen al voltant de 18.300 imatges arxivades en sobres i les respectives fulles de contacte. D’aquest fons hi ha 1.428 còpies de format 18×24 cm. Positivadas durant 1991-1992, totes elles s’han digitalitzat i inclòs en aquesta web.
En molta menys quantitat, en format 120, amb negatius de 6×6, hi ha al voltant de 1.600 fotografies en color i 140 en blanc i negre i també unes 156 fotografies amb negatiu panoràmic de 6×17 que en quasi en la seva totalitat, gran part, corresponen al periode 1991-1992.
A més, aquest fons compta amb unes 200 imatges de making of que documenten el procés de treball amb la càmera estenopeica.

FOTOGRAFIA DE CREACIÓ
Per a aquest projecte de creació, Llorens va utilitzar una càmera estenopeica, un dispositiu fotogràfic autoconstruït en el qual l’òptica se substitueix per un diminut orifici —l’estenop— practicat en una fina làmina metàl·lica, pel qual penetra la llum.
Les imatges retraten fàbriques, naus industrials, edificis ferroviaris i carrers de l’entorn de la Avinguda d’Icària poc abans de la seva demolició, així com els grans espais buits resultants. Més enllà del seu valor documental, l’eix central del projecte és el sentiment provocat pel pas del temps en un lloc viscut com a propi i condemnat a desaparèixer de manera ràpida i definitiva. La peculiar narrativa visual que proporciona la càmera estenopeica, contribueix decisivament a la formalització d’aquesta idea. La impressió per contacte a partir d’un negatiu de paper, el copiat sobre paper mat i el seu posterior virat al seleni i tenyit amb te reforcen aquesta noció de temporalitat, remetent a l’estètica de les còpies a la sal realitzades a partir de calotips de mitjan segle XIX.
La baixa fotosensibilitat del paper fotogràfic i l’escassa entrada de llum exigien temps d’exposició d’entre cinc i deu minuts a ple sol. En les imatges preses durant els enderrocaments, els murs en caiguda es transformen en ombres transparents. Amb la pràctica, Llorens va ampliar aquest procediment mantenint el mateix enquadrament i fraccionant l’exposició segons les diferents fases de la demolició, aconseguint un efecte pròxim a un time-lapse, en el qual fins a 60 o 90 minuts de temps real quedaven condensats en una única imatge. Una selecció de deu fotografies d’aquesta sèrie va ser presentada al concurs European Photography Award de Berlín en 1991, on va obtenir el segon premi. El treball va comptar a més amb el suport del fotògraf i teòric Joan Fontcuberta, qui ho va difondre en articles, exposicions i en el seu llibre El beso de Judas, dins del capítol “La ciudad fantasma”.
Nº Imatges i tipologies: 420 negatius de 18 x 24 cm.



OBJECTES RECUPERATS
Durant les demolicions, al mateix temps que feia les fotografies, Llorens va recuperar diversos materials dels edificis just abans de ser enderrocats; des de plànols industrials per construir una grua fins a fotografies, cartes i documents d’una família menorquina de principis del segle XX o bé documents municipals relatius al bombardeigs de la Guerra Civil, que ara formen part de l’arxiu.
Resum per Tipologia: El fons documental està compost per aproximadament 1100 peces dividides en les següents categories principals:
Documents i Fotografies (aprox. 900): Arxius familiars (família Pou-Femenias), registres municipals i retalls de premsa.
Material Gràfic i Tècnic (aprox. 180): Plànols, esquemes, croquis i plantilles industrials de Crèdit & Docks i Fàbriques Folch.
Objectes Històrics Varis (aprox. 40): Plaques d’impressió, bales de canó, ceràmica del segle XVIII i altres elements recuperats.
Làmines Tècniques (16): Projecte històric de sanejament de Barcelona de 1893 de l’enginyer Garcia Faria.
FONS DOCUMENTAL RELATIU AL PROJECTE URBANISTIC
Documentació generada per l’estudi històric -arquitectònic del sector Icària encarregat per l’Ajuntament abans de l’inici dels enderrocs i del propi procés d’obra generat per les empreses municipals VOSA i NISA.
Nombre de documents i tipologia: Estudi històric – arquitectònic del sector Icària realitzat per VOSA entre 1986-1987:
- Litografies (4 peces): Litografies a color d’algunes de les façanes dels edificis enderrocats
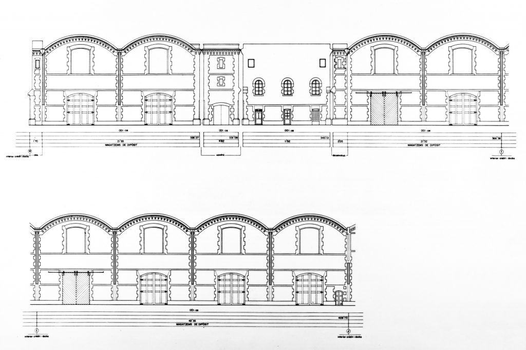
- Dossiers (10 volums): Estudi relatiu a les construccions enderrocades, incloent 160 làmines amb plantes i alçats.
- Estudi arqueològic (2 volums): Àrea corresponent a la xarxa de col·lectors en el tram del parc de la Ciutadella.
Publicitat «Nova Icària S. A.» (Aproximadament 20 peces): Fullets i merchandising per a la venda dels habitatges de Vila Olímpica.
Tots aquests materials, ara també són testimonis de la història desapareguda d’Icària. Aquest projecte es concebeix d’alguna manera com una experiència arqueològica que connecta diferents estrats espacials i temporals, entenent tant les fotografies realitzades com els objectes i documents recuperats a manera d’eines fonamentals per interpretar i reflexionar al voltant d’aquesta important transformació urbana i del seu impacte en la memòria col·lectiva de Barcelona.


La digitalització, indexació i implementació d’aquest fons ha sigut possible gràcies al suport de:

